Appareillage de commutation compact d'unité principale d'anneau électrique scellé entièrement isolé de la tension moyenne SF6
Boîtes de combinaison solaire photovoltaïque 500V-1500V 20A-630A
Armoire de commutation de réseau photovoltaïque triphasé 100-2000kW
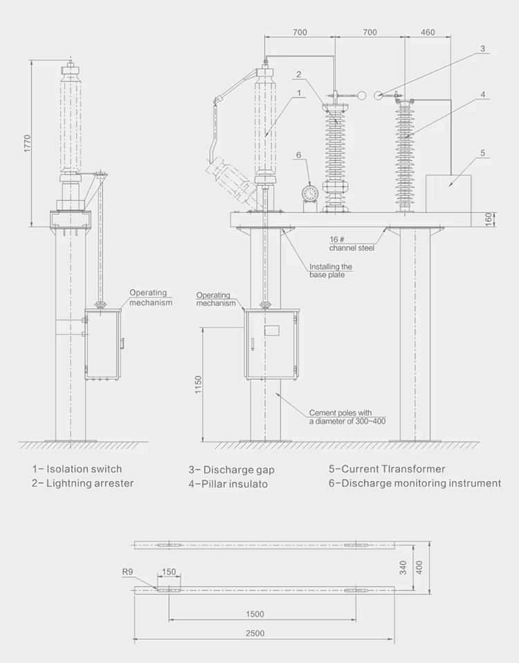
Sous-station intelligente/compacte 24KV(20KV)Le dispositif de protection de mise à la terre du point neutre du sectionneur GW13 produit par Lugao est conçu pour protéger l'isolation du point neutre du transformateur contre les surtensions de foudre, les surtensions de commutation et les surtensions de fréquence industrielle (transitoires). Lugao dispose d'un équipement de production professionnel et d'une riche expérience en matière d'exportation, et les stocks détenus peuvent être livrés rapidement.
Les dispositifs de protection de mise à la terre du point neutre du sectionneur GW13 de Lugao sont principalement utilisés dans les circuits de point neutre des transformateurs de puissance de 110 kV et 220 kV. Ils protègent l'isolation du point neutre du transformateur contre les dommages causés par les surtensions et permettent au transformateur de basculer entre les modes de fonctionnement du point neutre mis à la terre et non mis à la terre. Lorsqu'une protection simultanée contre la foudre, la fréquence industrielle et les surtensions de commutation est requise, un espacement et un parafoudre peuvent être connectés en parallèle pour la protection. Le protecteur de surtension à point neutre série GW13 est un ensemble complet qui intègre un sectionneur, un parafoudre à oxyde de zinc, un espace de décharge et un transformateur de courant. Il présente une capacité thermique élevée et une excellente protection, des configurations flexibles et une facilité d'utilisation. Une conception à espace pur ou une combinaison de sectionneur et d'espace de décharge peut être sélectionnée pour répondre aux besoins de l'utilisateur.
Spécifications techniques du dispositif de protection GW13
| article |
Unité |
Argument |
||
| Modèle de produit |
|
Lugao-GW13-110 |
Lugao-GW13-220 |
|
| Tension nominale |
KV |
110 | 220 | |
| Tension de tenue neutre du transformateur |
Tension de tenue à la foudre et aux coupures (crête) |
KV |
250 | 400 |
| Fréquence d'alimentation 1 min (valeur efficace) |
KV |
95 | 200 | |
| Sectionneur neutre |
Courant nominal |
A | 630 | 630 |
| Mécanisme de commande |
|
CS14G (manuel) ou CJ2 (électrique) |
||
| Parafoudre d'oxyde de zinc |
Tension nominale (RMS) |
KV |
72 | 144 |
| Tension de fonctionnement continue |
KV |
58 | 116 | |
| Tension de référence cc 1mA |
KV |
103 | 205 | |
| Tension résiduelle du courant de choc de foudre |
KV |
186 | 320 | |
| Écart de décharge |
Plage de distance des électrodes à espacement |
mm | 90-150 | 220-320 |
| Plage de tension de décharge à fréquence industrielle |
KV |
50-83 | 100-166 | |
| Tension de décharge impulsionnelle 1,2/50us |
KV |
120-190 | 250-320 | |
| Transformateur de courant |
Taper |
|
Résine époxy coulée pilier entièrement fermé type 10kv |
|
| Taux de transformation |
|
100/5 200/5 300/5.40015.50015.600/5 |
||

Interrupteur de déconnexion extérieur 12KV
Interrupteur de déconnexion haute tension extérieur 132KV
Interrupteur d'isolement haute tension extérieur Gw4
Gw1-12 interrupteur d'isolement haute tension extérieur
Gw1-24 interrupteur d'isolement haute tension extérieur
Interrupteur d'isolement haute tension extérieur Gw5